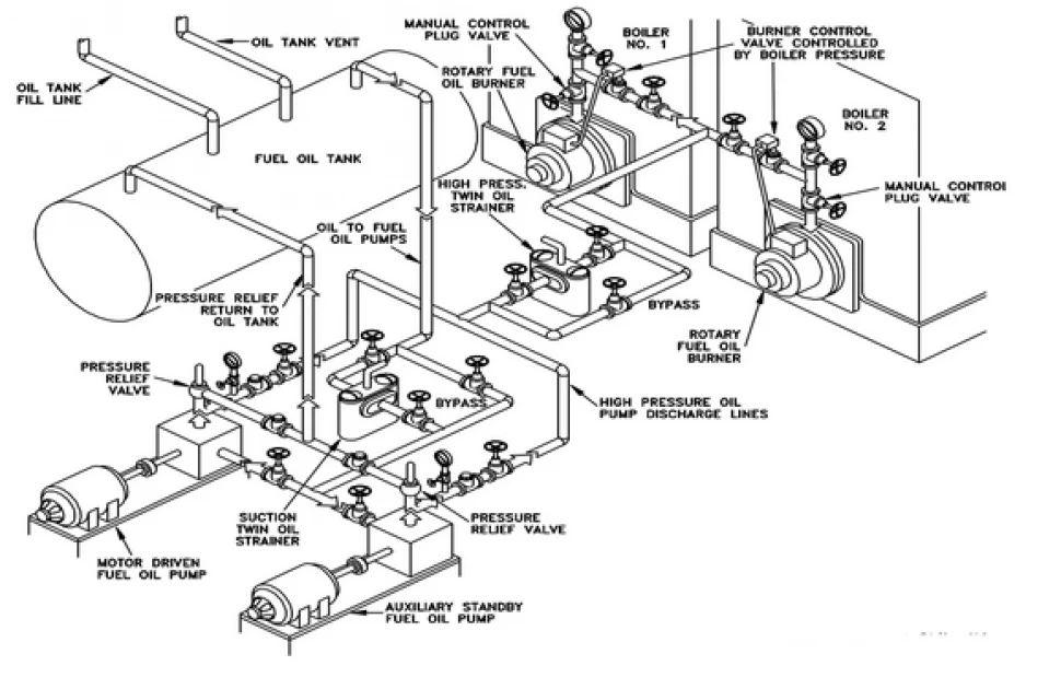
We provide detailed piping specifications and perform various calculations to ensure compliance with applicable codes and standards such as ASME, API, and ISO. Our calculations cover factors such as pressure drop, thermal expansion, and stress analysis.
Our engineering team creates detailed drawings for both primary and secondary piping supports, ensuring that all systems are adequately supported to prevent stress and vibration. We design supports that are easy to install and maintain, enhancing the overall reliability of the piping system.